Scheinwerfer einstellen

■ Ausführung A

■ Ausführung B
1. Pumpen Sie die Reifen mit dem vorgeschriebenen Reifenluftdruck auf und entlasten Sie das Fahrzeug bis auf den Fahrer, das Reserverad und das Bordwerkzeug.
2. Das Fahrzeug muss auf ebenem Untergrund stehen.
3. Zeichnen Sie zwei vertikale Linien (verlaufen durch die Mitte des jeweiligen Scheinwerfers) und eine horizontale Linie (verläuft durch die Mitte beider Scheinwerfer) auf die Projektionsfläche.
4. Richten Sie die Scheinwerfer so aus, dass der hellste Bereich auf der horizontalen und den vertikalen Linien liegt.
5. Um das Fernlicht nach oben oder unten zu verstellen, drehen Sie den Schraubendreher (1) im bzw. gegen den Uhrzeigersinn. Um das Abblendlicht nach oben oder unten zu verstellen, drehen Sie den Schraubendreher (2) im bzw. gegen den Uhrzeigersinn.
Nebelscheinwerfer einstellen

■ Ausführung A

■ Ausführung B
Die Nebelscheinwerfer werden auf dieselbe Weise eingestellt wie die Scheinwerfer.
Stellen Sie die Nebelscheinwerfer ein und achten Sie dabei auf den ordnungsgemäßen Zustand der Batterie und der Nebelscheinwerfer.
Um den Nebelscheinwerfer nach oben oder unten zu verstellen, drehen Sie den Schraubendreher im bzw. gegen den Uhrzeigersinn.
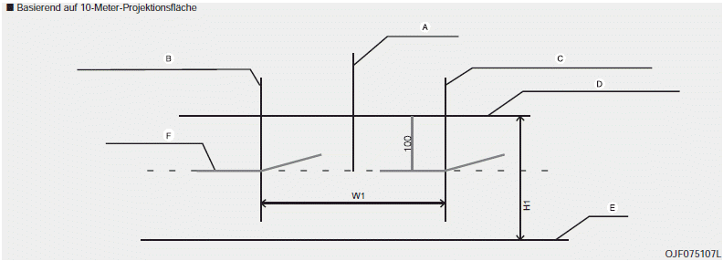
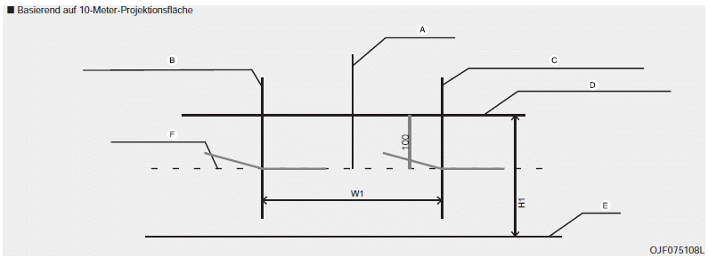
Zielpunkt




A: Fahrzeugachse
B: Vertikale Linie vom Mittelpunkt der linken
Scheinwerferglühbirne (Abblendlicht)
C: Vertikale Linie vom Mittelpunkt der rechten
Scheinwerferglühbirne (Abblendlicht)
D: Horizontale Linie vom Mittelpunkt der
Scheinwerferglühbirne (Abblendlicht)
E: Boden
F: Grenzlinie
Abblendlicht (Linkslenker)
1. Schalten Sie das Abblendlicht ein, wobei der Fahrersitz unbesetzt bleibt.
2. Die Grenzlinie muss wie in der Abbildung gezeigt projiziert werden.
3. Beim Einstellen des Abblendlichts sollte zunächst die horizontale und erst
dann die vertikale Einstellung erfolgen.
4. Falls eine Leuchtweitenregulierung verbaut ist, muss der entsprechende
Schalter in die Nullstellung gebracht werden.

A: Fahrzeugachse
B: Vertikale Linie vom Mittelpunkt der linken
Scheinwerferglühbirne (Abblendlicht)
C: Vertikale Linie vom Mittelpunkt der rechten
Scheinwerferglühbirne (Abblendlicht)
D: Horizontale Linie vom Mittelpunkt der
Scheinwerferglühbirne (Abblendlicht)
E: Boden
F: Grenzlinie
Abblendlicht (Rechtslenker)
1. Schalten Sie das Abblendlicht ein, wobei der Fahrersitz unbesetzt bleibt.
2. Die Grenzlinie muss wie in der Abbildung gezeigt projiziert werden.
3. Beim Einstellen des Abblendlichts sollte zunächst die horizontale und erst
dann die vertikale Einstellung erfolgen.
4. Falls eine Leuchtweitenregulierung verbaut ist, muss der entsprechende
Schalter in die Nullstellung gebracht werden.

A: Fahrzeugachse
B: Vertikale Linie vom Mittelpunkt der linken
Scheinwerferglühbirne (Abblendlicht)
C: Vertikale Linie vom Mittelpunkt der rechten
Scheinwerferglühbirne (Abblendlicht)
D: Horizontale Linie vom Mittelpunkt der
Scheinwerferglühbirne (Abblendlicht)
E: Boden
F: Grenzlinie
G: Obere Grenze
Nebelscheinwerfer
1. Schalten Sie die Nebelscheinwerfer ein, wobei der Fahrersitz unbesetzt bleibt.
2. Die Grenzlinie muss innerhalb des zulässigen Bereichs projiziert werden (schraffierter Bereich).
Glühlampe der
Gepäckraumleuchte ersetzen
Fahrzeugpflege